Zum Hauptinhalt springen
Der Märkische Gewerbepark Rosmart

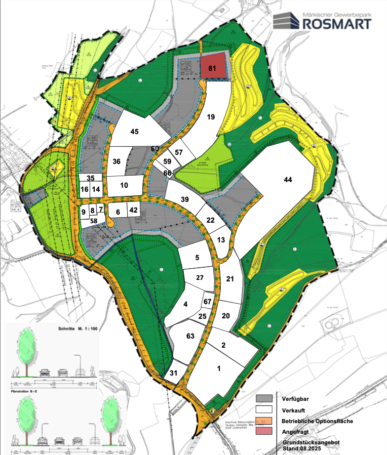
Eine Top Position!

Der Märkische Gewerbepark Rosmart befindet sich auf einem Höhenzug, der die Städte Altena, Lüdenscheid und Werdohl über die gut ausgebaute Landesstraße L 655 verbindet. Das Gewerbegebiet gehört zur Stadt Altena. Obwohl Wald, Weiden und das Dorf Rosmart die unmittelbare Umgebung des neuen Industriestandortes prägen, schaffen eine ausgezeichnete Infrastruktur und günstige Preise ideale Standortbedingungen für Unternehmen, Dienstleister und Handwerker.